|
--------------------------------------------------------------------------
日式建築的繪製方式
--------------------------------------------------------------------------
重要! 此教程僅算是筆者在建造永遠亭時,稍微收集的一些內容。所以可能內容有誤,請大老們多多指教。
前言:
關於日式建築,滿好奇各位是怎麼認知的。是出自於漫畫? 動漫? 還是書籍呢? 這這篇文章中,筆者將會簡單的先給各位依些關於一些日式建築中,比較重要、不可少的東西。以便於未來在繪畫、創作上,盡量避免出現錯誤。
關於本文:
本文主要將著重介紹江戶末的古建築以及之後的變體。在本文中,會著重於收集建築中較為重要,並會在部分內容上有所省略,因為在MC中,由於其本身像素的性質,在許多細節上會無法被造出來。故也沒有深入研究~w~。另外,本文的建築會偏向"豪宅類"的建築,不屬於普通的"民宅",請務必注意!!!
壹、關於日式建築的幾大特點
一、房間的規劃
在日式建築中,"少量的房間,大量的空間"可以成為一句代表他們的話。相較於我們當代用走廊來連接房間與房間,日式建築更喜歡以"拉門"或是"可拆卸的木板牆"來分隔、連接房間,並捨棄了許多區域的走廊,用以增加房間的大小。以下圖為例子,在圖的右邊中是另一個房間,若依照我們現今的規劃,可能會在中間放一條連通用的走廊。即使在古代的歐洲和中國,多也是如此規劃。當然,並不表示他們就沒有"走廊",在連通一些其他結構,例如廚房、浴室或是樓梯之類的"非房間結構"時,依就會有走廊的結構出現。
1936年,遠山家(遠山紀念館),書齋
二、採光和通風的要求
不只在日式建築,在古中國就有這樣的結構出現了。古人可沒有什麼冷氣電風扇的黑科技,夏天的時候依舊是非常炎熱的,所以說在古代,東亞地區的建築就有發展出可拆卸的牆板和門,以便夏天的時候直接拔掉,讓室內可以通風(總不能去冰窖吧,太奢侈了)。除此之外,以前也無電燈,光源是一個非常倚賴大自然的東西,故能開孔的地方,通常都會開(上次有看到一份資料,其實古中國中,"窗",其實是指在天花板上的"天窗",與我們現在意義上開在牆上的"窗"有所不同)。近代以後,玻璃也變成了唾手可得的物品,故現今的古建築外就會用玻璃門來當牆板用(不是直接拔掉了,要不燃蚊蟲動物都會跑進來)。
1936年,遠山家(遠山紀念館),西棟
三、獨特的屋頂
在這一點上,這也是日式建築中的一個非常大的特色。除此之外,筆者要在這鄭重聲明: 日式不等於唐風,不要被網上那些營消號給唬爛了。日式的屋頂呀,說起來很複雜。常見的有歇山頂、廡殿頂和懸山頂。可以參考以下資料(渡邊義孝(2018)。《臺灣日式建築紀行》),圖片是最直觀的。

1924年,茂原市早野正在出售的古民家,正門攝影
四、對於個人空間的渴望
日本是一個非常注重"個人空間的"國家。這項傳統至今依舊保存著,你可以發現,那怕是室外只剩下一坪米的小空間,他都會被巧妙地發展成"個人小庭園"。這個東西,筆者尚無找到和時的資料佐證,但就事實而言,正是如此。在1960年以後這些變化則更加的明顯。
1970,漢密爾頓花園,枯山水
貳、關於建築室內的結構
一、和室
和室,是屬於日式建築中最具代表性的東西,也近乎是古日本建築中的全部。以下為和室中大部分結構的稱呼,在繪製日式建築中最重要的為: 天井、疊(塌塌米)和床之間(及配合他的長壓)。天井,可以理解為遮住屋頂結構的木板片。和室的用途基本上概括了起居、用食、辦公、書齋等一切內容。依照內部擺飾決定。在繪製的時候,以"放在木橫條上的木片"繪製即可。另外就是疊,在日本建築中,通常會用"疊數"紀錄和室的尺寸,在製作時,千萬記得塌塌米的排法,不要搞錯了!在和室中,會用長壓切開幾個小隔間(通常是兩個),讓和室內出現一些變化。接下來是側邊的敷居、鴨居、書院等。他們會貼在"隔壁有空間的地方",增加通風和採光。通常在繪圖時,案這下面這張圖的結構畫就可以了,除非今天繪圖時會跨到別的房間,那就需要留意規劃了,最好用拉門遮住。
維基百科: 和室
二、土間
土間,就是古時的工作室。許多工作都會在這邊做。有時候也會承包廚房的工作,如果要說最明顯的就是其地板是用土鋪成的。通常也是看起來最髒的地方。在繪製上,這裡可以發揮的空間很大,因為他們會設計在房子的邊邊角角,也不會刻意去修飾,所以會有很多特殊的結構暴露出來。
806年,箱木家住,土間
三、台所
台所,便是和廚房相似但不等同於廚房的地方。這裡是用來炊煮食物的地方,火爐、大鍋都會蓋在這邊,通常會比旁邊的房間更低一點,一些食材、柴火也會儲存在這裡。一棟建築通常只會有一個台所,並且其也會設置在建築的一角。並且有連接到外面的大門(側門)。獨立於其他房間。容易和土間搞混。

1816年,飛驒高山役所,台所
四、廳下、廊下
這個結構跟"走廊"非常相似,但是又不太一樣。廳下、廊下是連接房間和外面的過渡區域,通常會裝設可拆卸的門板或牆板,在夏天時可以拿下通風。這個結構在繪製時當成走廊處理就好。

1936年,遠山家(遠山紀念館),廊下
五、浴場
浴場,在古建築中不會出現的結構。在明治維新之後才逐漸出現的東西,在此之前通常會到公共浴場。設計上,就按照傳統的浴場自由發揮吧。

1936年,遠山家(遠山紀念館),浴場
六、化妝室
這個結構也是傳統日式建築中不太會出現的東西,該結構連接著浴室,筆者推測為: 配合屋主需求額外建造的,在洗好澡後整理儀容用的。
 1936年,遠山家(遠山紀念館),化粧室
七、廁所
左右兩個分別為"維新後的廁所"和"維新前的廁所"。可以發現在維新後基本上都是按照歐洲的格式建造了,而在此之前...真的是一言難盡呀。更別說貧民百姓的。

1936年,遠山家(遠山紀念館),與1816年,飛驒高山役所,廁所
八、廣間
這是一個非常不準確的名稱,其實就是"比較大的和室",他們的用途有很多種,當作應接室、會議室、餐廳...等都可以。設計上,依照和室即可。
1816年,飛驒高山役所,廣間
九、西洋化房間
該類結構屬於明治維新後的產物,將和室的結構與洋房結合。更類似洋房的變體,故筆者在此不多做介紹。
1936年,遠山家(遠山紀念館),會客廳
叁、關於建築室外的結構
一、庭園
1、浄土式庭園: 流行於平安-鎌倉時代。當時受到中國文化的影響,日本的寺院開始率先修築的庭園,卓著於模仿佛經說的"極樂世界"。通常是在庭院中央修築一個極大的池子,在岸邊修建華麗的大殿並重竹許多花草樹木。大殿內放置佛像。 浄瑠璃寺庭園(1047)
2、寝殿造系庭園: 始於平安中期,在寺院推動庭園之後。開始對民間產生的影響。其最大的特色是庭園中會修出一個極其奢華的大殿,用於給屋主休憩並幻想貴族、宮廷那種建築。其建築風格在後來影響了江戶建築的風格。 法隆寺聖霊院(1121)
3、書院造庭園: 其始於寝殿造系庭園的變體,並在桃山時代之後逐漸取代了前者。其核心在於,庭院是以"書齋"為中心展開的。一直到明治時代都有建造,因流行於武士之間,亦有"武家造"一稱。 慈照寺東求堂(1428)
4、枯山水庭園: 枯山水,是日本獨有的庭園風格室町時代中期,在造庭園時,水一直是其中一大難解的東西,因為在導流、建造的成本都非常高。後來就衍生出了"以枯石、砂礫替代水"的庭園。後來廣泛流行於民間。又因砂礫放置的方式、規模,又分平庭、準平庭、枯池、枯流、築山等樣式。 龍安寺方丈庭園(1500前後)
5、回遊式庭園: 始於室町時代,止於江戶時代,這種庭園是現今最常見,也是我們最熟悉的庭園。該風格為在庭園各地營造不同風格的風景,並可以在到各處時看到不同的景色。 桂離宮庭園(1615)
6、大名庭園
該庭院為回遊式庭園的升級版,始於江戶時代。專指各地藩的大名所造的庭園,其結合枯山水、露地等方式,屬於庭園的集大成之作。也是庭園的頂點。 彦根藩玄宮園(1678)
二、露地(茶室)
屬於庭園的衍生物,起於是自唐以後,"茶道"的傳入了日本,所以當時有所謂"在園林閒逛至茶室飲茶,修生養性"的概念。茶室變化非常多,有的類似下圖的一個小房間,有的甚至只搭了一個棚子。屬於一個設計上比較自由,且機會不回被注意東西。
1819年,兼六園,茶室
三、土藏
土藏,就是所謂的倉庫。通都是獨立在主建築外獨立健在的房子,外形結構大致相仿。基本上每一個房子,乃至於庶民都會有。現今有依稀可以看到他們。 1919年,智頭宿・石谷家住宅,土藏
四、馬廄
屬於大戶人家、公家建築才會附帶的建築。用於放馬的地方,而載明治維新後也逐漸都因為荒廢被拆除,現今不多見,通常就是剷平後改建成土藏或是變成園林的一部份。
778年,清水寺,馬廄
五、長屋門
長屋門,是日式建築中極其重要的一個結構。類似現今的大門。在城郭、陣屋(公務場所)、武士家乃至於地方仕紳大戶都可以看到。該建築是用於彰顯屋主的地位,兩側有小房間,用以給值班人員開門。明治維新後,該規治便消失了,但依舊會有人建造。在設計的時候,千萬不能忘記。
1598年.柏原藩織田家舊家,長屋門
肆、幾個建築的案例
一、遠山家(苗木藩)
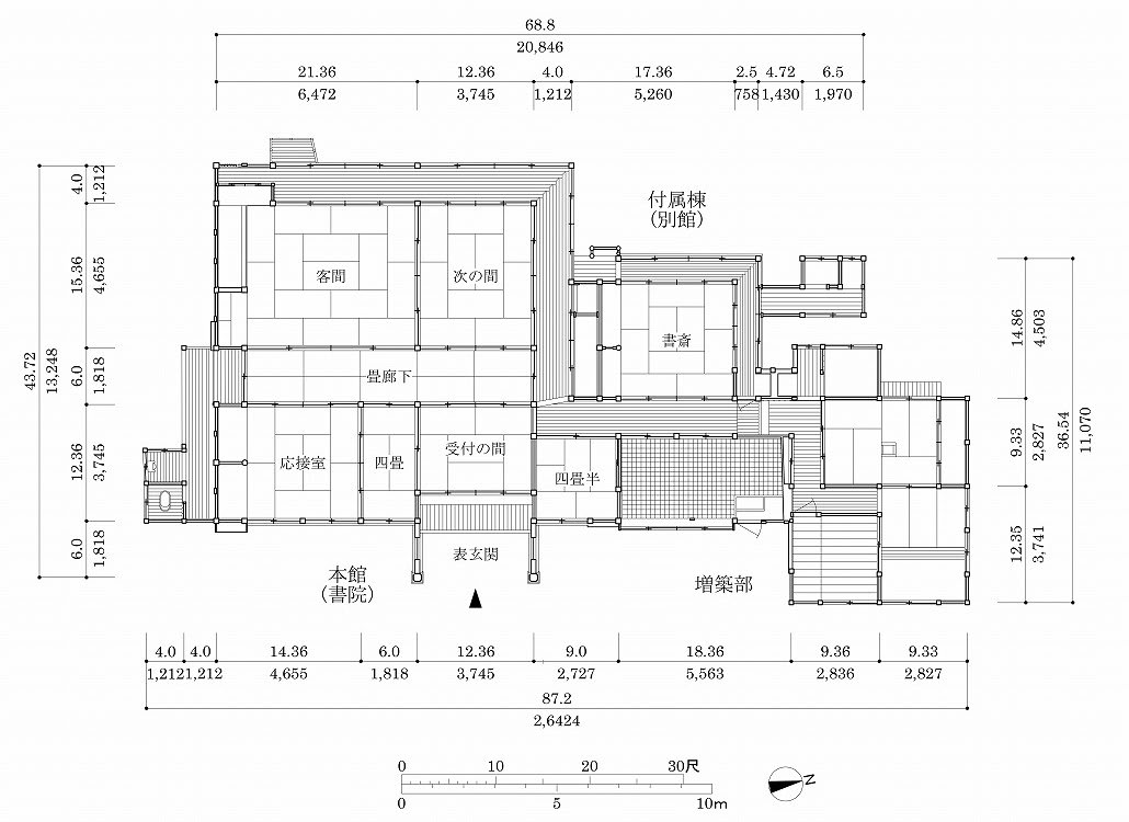
二、遠山家(遠山紀念館)
三、飛驒高山陣屋
四、岡山県倉敷市船穂町柳井原
伍、幾個資料連結
備註: 日本人有個壞習慣,資料會定期刪掉,所以連結失效實屬正常,記得存呀!
結語:
沒想到真的給寫好了,花了好像5-7個小時吧,一筆寫成的。繼續努力看看能不能搞到繪圖區徽章吧!
|